Universitätsmedizin Greifswald, Neubau Forschungsbau William B. Kannel Center for Community Medicine (CM)
18.07.2024 • Klinikbau
Auf Beschluss der Gemeinsamen Wissenschaftskonferenz (GWK) des Bundes und der Länder vom 2. Juli 2021 wurde der Neubau des Forschungsbaus "William B. Kannel Center for Community Medicine" (CM) für die Universitätsmedizin Greifswald (UMG) in ein gemeinsames Förderungsprogramm aufgenommen. Der Bund und das Land Mecklenburg-Vorpommern investieren hier gemeinsam etwa 65,7 Millionen Euro in das neue Forschungsgebäude.
Die GWK folgte mit ihrer Entscheidung den Empfehlungen des Wissenschaftsrates vom April 2021, der die Forschungsthematik der Greifswalder Community Medicine als "insgesamt herausragend" bewertet hatte.
Da die Förderung der Maßnahme auf den Zeitraum von 2022 bis 2026 begrenzt ist, musste alles sehr schnell gehen. Bereits im Vorfeld, im Juli 2020, wurde durch das Staatliche Bau- und Liegenschaftsamt (SBL) Greifswald ein europaweites Vergabeverfahren zur Gewinnung eines Generalplaner-Teams bekannt gemacht. Zu den zu erbringenden Leistungen gehörten bzw. gehören neben der Objektplanung Gebäude auch die Planungen der Freianlagen, der Ingenieurbauwerke und Verkehrsanlagen, die Fachplanungen Tragwerksplanung und Technische Anlagen sowie Leistungen der Bauphysik und des Brandschutzes.
Insgesamt gingen fünf Bewerbungen für diese Leistungen ein, von denen nach einer ersten Wertungsstufe die drei punktbesten Bewerber zu einem kleinen Wettbewerb (zweite Wertungsstufe) ausgewählt wurden.
Mit einem gelungenen Entwurf und dem wirtschaftlichsten Angebot konnte das Generalplanungsteam MHB Architekten + Ingenieure GmbH aus Rostock die Jury überzeugen und wurde mit der Erbringung der Generalplanungsleistungen beauftragt.
Mit einem gelungenen Entwurf und dem wirtschaftlichsten Angebot konnte das Generalplanungsteam MHB Architekten + Ingenieure GmbH aus Rostock die Jury überzeugen und wurde mit der Erbringung der Generalplanungsleistungen beauftragt.
Allgemeines – Community Medicine in Greifswald
Die UMG etablierte 1995 Community Medicine (CM) als ein Alleinstellungsmerkmal in der deutschen Universitäts-/Forschungslandschaft. Mit ca. 380 Mitarbeitenden in fünf eigenständigen Abteilungen ist das Institut für CM schon heute die größte und forschungsstärkste Einrichtung der UMG.
Projekte von nationaler Bedeutung wie die Study of Health in Pomerania (SHIP), die NAKO Gesundheitsstudie oder AGnES belegen die interdisziplinäre Interaktion und Translation eigener Ergebnisse in die Versorgung, die profilbildend auch für den Standort des Deutschen Zentrums für Herz-Kreislauf-Forschung (DZHK) sowie den Standort des Deutschen Zentrums für Neurodegenerative Erkrankungen (DZNE) an der UMG sind. In der CM werden Studien etabliert und Methoden entwickelt, die Ursachen, Risikofaktoren und Prädiktoren von populationsrelevanten Erkrankungen und Funktionsverlusten identifizieren.
Zielstellung – Forschungsbereiche
In dem geplanten Forschungsbau wollen die Greifswalder Wissenschaftlerinnen und Wissenschaftler die zunehmende Häufigkeit von Krankheiten, wie Diabetes, Adipositas und Herz-Kreislauf-Erkrankungen im Zusammenhang mit dem demografischen Wandel erforschen. Er wird als interdisziplinäres Zentrum für bevölkerungsbezogene Gesundheitsforschung diese fünf Forschungsgruppen unter einem Dach zusammenführen:
- Institut für Community Medicine
- Community Dentistry
- Zentralstelle des Klinischen Krebsregisters Mecklenburg-Vorpommern (ZKR-MVB)
- DZHK
- DZNE
- Kernbereich A – Epidemiologie,
- Kernbereich B – Präventionsforschung sowie
- Kernbereich C – Versorgungsforschung,
Ein integrierter Funktionsbereich Telemedizin und eine Datentransferstelle sind als Forschungsinfrastrukturen vorgesehen und werden allen Kernbereichen zur gemeinsamen Nutzung zur Verfügung stehen.
Standort und städtebauliches Konzept
Der Neubau CM wird auf dem zentralen Campus der UMG in unmittelbarer Nähe zu den Instituten und Kliniken errichtet. Als Baufeld steht im südöstlichen Campusbereich die östlich an den großen Parkplatz angrenzende Freifläche Ecke Anklamer Str./Karl-Liebknecht-Ring zur Verfügung.
Für den Campus wurde 2008 ein Masterplan (Städtebaulicher Rahmenplan) aufgestellt. Danach ist das vorgesehene Baufeld Bestandteil Sondergebiet (SO) Universität/Klinikum.
Ziel war und ist es, mit dem Forschungsneubau nicht nur dem funktionellen und räumlichen Bedarf an Forschungskapazitäten, sondern auch der Sichtbarmachung und Identifizierung der UMG gerecht zu werden. Ein hochfunktionales Gebäude mit repräsentativem Anspruch und Wiedererkennungswert - gut sichtbar und signifikant - soll an diesem städtebaulich markantem Eckstandort entstehen. Damit wird sowohl auf die herausragende Bedeutung dieses Forschungsbaus CM als Aushängeschild der Universität und der UMG hingewiesen als auch dem Medizinischen Campus nach Südosten ein städtebaulich harmonischer, klarer und prägnanter Abschluss / Rahmen verschafft.
Neben den o. g. gestalterisch-repräsentativen Ansprüchen waren bzw. sind bei der Planung und Errichtung des CM insbesondere z. B. auch folgende städtebauliche und planungsrechtliche Vorgaben zu beachten:
- bevorzugte Ausführung mit Flachdach,
- Einhaltung maximal vorgegebener Gebäudehöhe sowie Gebäudeabstand zur Straße,
- Aufnahme vorhandener Baufluchten,
- Erhalt der geschützten Baumallee entlang der Anklamer Straße,
- Berücksichtigung Stellplatz- und Fahrradabstellplatz-Satzung der Universitäts- und Hansestadt Greifswald sowie
- Berücksichtigung der tangierenden Fernwärmeleitung parallel zum Karl-Liebknecht-Ring.
Das Entwurfskonzept
Der Forschungsneubau CM entsteht südöstlich des großen Parkplatzes und grenzt an die Anklamer Straße, Ecke Karl-Liebknecht-Ring. Er bildet mit seiner beeindruckenden Größe einen markanten Auftakt für das Universitätsgelände. Im Kreuzungsbereich ist das Gebäude fünfgeschossig und treppt sich entlang des Karl-Liebknecht-Rings auf vier Geschosse ab. Die im dritten Obergeschoss, auf beiden Gebäudelängsseiten vorgesehenen Fassadenrücksprünge verstärken die optische Wirkung des fünfgeschossigen Kopfbaus.
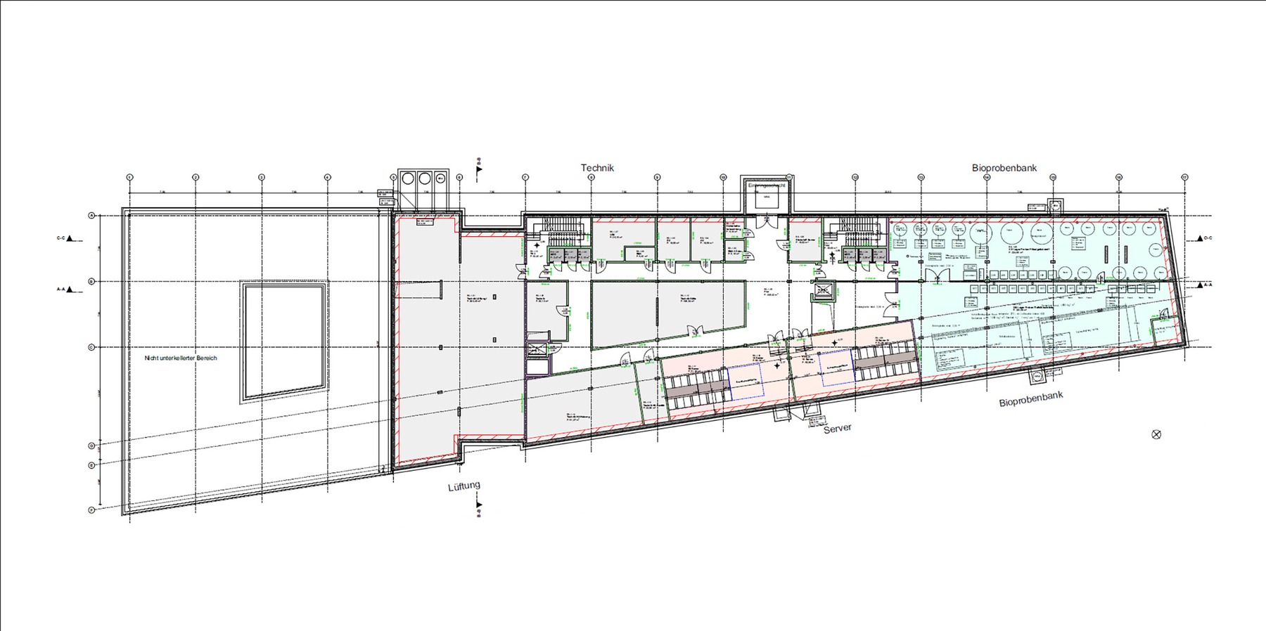
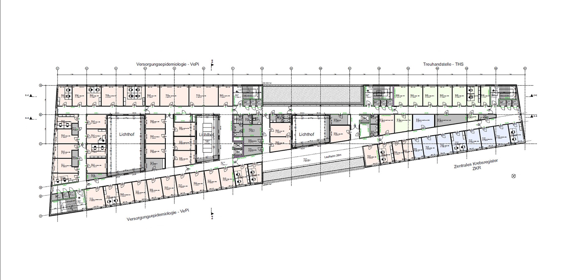
Die fußläufige Erschließung des CM erfolgt vom Karl-Liebknecht-Ring aus über den hier an der südöstlichen Längsseite befindlichen Haupteingang. Ein weiterer Eingang für Besucher sowie eine separate Ver- und Entsorgungszone befinden sich an der gegenüberliegenden Längsseite und sind direkt vom Parkplatz bzw. der dort befindlichen Zufahrt aus erreichbar. Neben den beiden Besuchereingängen wird es einen separaten Zugang für Mitarbeitende an der schmalen Nordseite entlang der Ferdinand-Sauerbruch-Straße geben. Das ca. 120 m lange Gebäude hat eine keilförmige Grundstruktur, unterbrochen von Lichthöfen, die Tageslicht in das Gebäudeinnere leiten.
Die fußläufige Erschließung des CM erfolgt vom Karl-Liebknecht-Ring aus über den hier an der südöstlichen Längsseite befindlichen Haupteingang. Ein weiterer Eingang für Besucher sowie eine separate Ver- und Entsorgungszone befinden sich an der gegenüberliegenden Längsseite und sind direkt vom Parkplatz bzw. der dort befindlichen Zufahrt aus erreichbar. Neben den beiden Besuchereingängen wird es einen separaten Zugang für Mitarbeitende an der schmalen Nordseite entlang der Ferdinand-Sauerbruch-Straße geben. Das ca. 120 m lange Gebäude hat eine keilförmige Grundstruktur, unterbrochen von Lichthöfen, die Tageslicht in das Gebäudeinnere leiten.
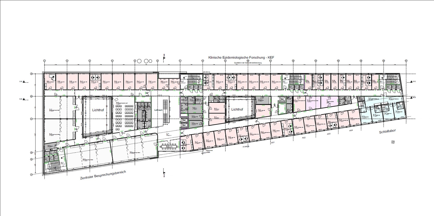
Im Erdgeschoss gelangt man über die beiden Haupteingänge in das großzügige Foyer mit Empfangs- und Informationsbereich und zentraler Wartezone. In diesem Geschoss sind die Untersuchungsbereiche sowie alle von Probanden genutzten Funktionsbereiche (Sporträume, MRT) untergebracht. Im ersten Obergeschoss befinden sich neben Büroflächen auch der Konferenz- / Besprechungsbereich sowie das durch Probanden genutzte Schlaflabor.
Ab dem zweiten Obergeschoss sind ausschließlich Büros sowie deren Nebenräume geplant.
Als Besonderheit ist im dritten Obergeschoss zusätzlich noch ein Laufanalysegang entlang des Flurs vorgesehen.
Als Besonderheit ist im dritten Obergeschoss zusätzlich noch ein Laufanalysegang entlang des Flurs vorgesehen.
Auf dem Dach des viergeschossigen Bereichs wird eine Lüftungszentrale angeordnet, welche sich deutlich von der Vorderkante zurücknimmt. Im Kellergeschoss – das Gebäude ist teilunterkellert – sind neben der Haustechnik auch die Räume der Bioprobenbank sowie zentrale Serverräume geplant.
Funktionalität - moderne Arbeitsformen
Das funktionale Konzept innerhalb des CM entspricht dem Forschungs-/Institutsablauf und spiegelt diesen wider:
- Daten produzieren - Untersuchung, Erfassung,
- Daten verwalten – Dokumentation, IT sowie
- Daten wissenschaftlich verwerten – Forschung, Analyse.
Mit der zum Jahresende 2026 geplanten Fertigstellung des Forschungsgebäudes CM werden hier bis zu 173 Probanden täglich untersucht werden können. Dafür werden Arbeitsplätze für 379 Mitarbeitende auf einer Nutzfläche von 7.488 m² zur Verfügung stehen.
In Bezug auf die Arbeitsbedingungen wird der Neubau optimal auf die Bedürfnisse der Mitarbeitenden angepasst. Die Kombinationen aus großflächigen Fensterfronten, direkt - indirekt strahlenden Leuchten sowie einem vornehmlich warmem Farb- und Materialkonzept sorgen für einen angenehmen Gesamteindruck, der ein Wohlfühlen am Arbeitsplatz ermöglicht.
Baukonstruktion und bautechnische Besonderheiten
Das auf Bohrpfählen und einer wasserundurchlässigen Stahlbeton-Bodenplatte gegründete Gebäude wird als Stahlbetonbau in konventioneller Bauweise, als Stützenkonstruktion mit Flachdecken errichtet. Tragende Außenwände mit einer Dicke von 25 bis 30 cm, Kellerwände als "weiße Wanne" sowie tragende und aussteifende Innenwände mit einer Dicke von 25 cm werden ebenfalls aus Stahlbeton hergestellt.
Ausgewählte Außenwandbereiche sowie Innenwände im Bereich der Treppenhäuser und Aufzüge werden als Sichtbetonwände ausgeführt. Nichttragende Innenwände werden in Leichtbauweise bzw. als Mauerwerkswände aus Kalksandstein errichtet.
Der Besprechungs- und Konferenzbereich im ersten Obergeschoss sowie die Sporträume im Erdgeschoss erhalten mobile Trennwände, die eine Mehrfachteilung ermöglichen. Entsprechend den Anforderungen des Nutzers wird ein elektronisches Schließsystem für den kontrollierten Gebäude- und Raumzutritt installiert.
Die Erschließung ist hinsichtlich Ver- und Entsorgung über den Universitätscampus gesichert. Die Wärmeversorgung wird über Fernwärme erfolgen. Dafür ist im Untergeschoss ein Heizraum/Übergaberaum vorgesehen. Um die Einleitmengen von anfallendem Regenwasser in das öffentliche Netz deutlich zu verzögern, ist ein Retentionsdach als Gründach geplant. Zusätzlich wird ein Staukanal im Erdreich verbaut werden. Die zurückgesetzte Lüftungs-/Technikzentrale wird als verzinkte Stahlrahmenkonstruktion direkt auf der Dachdecke des dritten Obergeschosses verschraubt. Auf den Flachdachflächen des fünfgeschossigen Bereiches werden Rückkühler sowie Flächen für Photovoltaikanlagen angeordnet.
Die äußere Gestaltung
Das CM erhält eine dreifach gegliederte Fassade: im Sockelbereich (Erdgeschoss) eine vorgehängte Fassade mit Spachtelputz in Betonoptik, im Konferenzbereich (erstes Obergeschoss) eine großformatige Glasfassade als Pfosten-Riegel-Konstruktion, in allen Büroetagen und -bereichen eine Wärmedämmverbundsystem-Fassade mit einem vorgesetzten vertikalen und beweglichen Sonnenschutz aus mehrfarbigen Metallpanelen mit lichtdurchlässigem Anteil. Für die Technikzentrale über dem dritten Obergeschoss kommen pulverbeschichtete Sandwichelemente als Hülle zur Anwendung. Die Rückkühler auf dem Dach des vierten Obergeschosses erhalten einen Sichtschutz aus Alu-Rahmenelementen mit Streckmetallausfachung auf pulverbeschichteten Aluminiumpfosten.
Energetische Ziele und Nachhaltiges Bauen
Sowohl die Planung als auch die Errichtung des Forschungsneubaus sind konsequent auf Nachhaltigkeit, Klimaschutz und Effizienz ausgerichtet.
Die im Mai 2022 vorgelegte EW-Bau entspricht/entsprach dem Standard GEG 20 (Gebäudeenergiegesetz von November 2020). Im Zuge der laufenden AFU-Planung erfolgte eine Umplanung auf die aktuellen Standard-Anforderungen "EG 40 – Effizienzgebäude".
Nennenswerte Energieeffizienz-Maßnahmen am Gebäude bzw. der Haustechnik sind z. B.:
- Erhöhung der Dämmstoffdicken bzw. Optimierung des Dämmstoffes für die opaken Außenbauteile (in Abstimmung mit dem Brandschutz),
- Fenster mit verbessertem Uw-Wert ≤ 1,00 W/m²K,
- Oberlichter mit verbessertem Uw-Wert ≤ 1,60 W/m²K,
- Einbau hocheffizienter Anlagentechnik,
- Primärenergieverbrauch (Ist) = 43,2 kWh/(m²a) < Sollwert 0,4 x 110,6 kWh/(m²a)),
- Fernwärme für Gesamtheizbedarf ca. 600 kW (Anm.: überdurchschnittlich guter Primärenergiefaktor der Fernwärme in Greifswald – wird mit derzeit deutschlandweit größtem Solarthermiefeld betrieben),
- Lüftungsanlagen erhalten Wärmerückgewinnungsanlagen mit hohem Wirkungsgrad,
- Beleuchtung: LED - Optimiertes Energiemanagement über die Gebäudeautomation sowie
- Errichtung einer Photovoltaikanlage mit ca. 88 Modulen auf dem Dach des CM: geplante Leistung ca. 60 kWp – Einsparung ca. 60.000 kWh/Jahr – Einsparung CO2 ca. 23 t/Jahr.
Sonstiges – Wissenswertes, Interessante Fakten und Besonderheiten
Die im Zuge der Planung und Realisierung des CM auch zu beachten waren bzw. sind:
- Berücksichtigung bereits vorhandener Erschließungssysteme und Verkehrsströme, Parkplatzanbindung, ÖPNV-Anbindung (Bus),
- Barrierefreiheit – Erhöhung der Attraktivität des Gebäudes für die Probanden,
- Berücksichtigung des vorhandenen Leitungsbestandes auf dem Baufeld,
- Aufschaltung von Gebäudemanagement/Gebäudeautomation auf die UMG-Zentrale,
- flächendeckende medientechnische Ausstattung,
- flächendeckendes W-LAN (zwei Netze: Probanden + intern), Telemedizin,
- technisches Monitoring,
- Berücksichtigung Großgerätekonzept der UMG (drei Großgeräte) – MRT, Biobank, Server/Rechnerraum bei Planung und Ausführung: höhere Deckenlasten, klimatische Anforderungen, Forschungsdatenbanken, Redundanzanforderungen,
- gleitende Planung – zeitgleich AFU-Planung und Ausführung in engem Zeitrahmen aufgrund des mit Förderbeschluss der GWK geforderten Fertigstellungstermins sowie
- Ausgleichspflanzungen für Bäume, die gerodet werden mussten, auf dem Gelände der UMG.
Förderung - Förderbedingungen
Die Förderung des Forschungsbaus gliedert sich in die gemeinsame Bundes- und Landesfinanzierung der Baukosten, der Kosten für die Großgeräte und der Kosten für die Ersteinrichtung. Dabei beträgt der Anteil der Bundes-Fördermittel 50 Prozent. Wegen der besonderen Förderbedingungen für Forschungsbauten sind konkrete Förderbedingungen einzuhalten. So müssen sämtliche Bauleistungen, Lieferungen und sonstigen Leistungen bis Ende 2026 vollständig abgeschlossen sein. Dies umfasst also nicht nur den Baukörper, sondern auch die Großgeräte und Ersteinrichtung, deren Lieferung und Einbau sowie die seitens der UMG zu koordinierende Inbetriebnahme.
Die wichtigsten Eckdaten bisher - Universitätsmedizin Greifswald, Neubau CM
| Planungsauftrag für Erstellung der EW-Bau | 09.2019 |
|---|---|
| europaweite Auslobung der Generalplanungsleistungen - Start VgV-Verfahren | 07.2020 |
| Abschluss VgV-Verfahren - Beauftragung Generalplaner | 03.2021 |
| Planungsstart Aufstellung EW-Bau | 04.2021 |
| Aufnahme CM in das gemeinsame Förderprogramm von Bund und Ländern (Förderphase 2022 - 2026) |
07.2021 |
| Baubeginn mit Rodungsarbeiten zur Baufeldfreimachung als vorgezogene Maßnahme | 02.2022 |
| Vorlage EW-Bau | 05.2022 |
| Freigabe AFU-Planung für vorgezogene Leistungen Baustelleneinrichtung, Erschließung, Baugrube, Spezialgründung | 05.2022 |
| Beginn baubegleitende AFU-Planung | 05.2022 |
| Anerkennung EW-Bau | 07.2022 |
| Beginn vorgezogene Bauleistungen, Baustelleneinrichtung | 10.2022 |
| Beginn der Erschließungsarbeiten, Baugrube, Verbau, Spezialgründung | 11.2022 |
| Grundsteinlegung | 21.06.2023 |
| Richtfest | 17.07.2024 |
| geplante Fertigstellung / Bauübergabe incl. Inbetriebnahme Großgeräte und Erstmöblierung | 12.2026 |
Stand: Juni 2024
Planungsdaten - Universitätsmedizin Greifswald, Neubau CM
| Bauherr | Land Mecklenburg-Vorpommern, vertreten durch das Staatliche Bau- und Liegenschaftsamt Greifswald |
|---|---|
| anerkannte Gesamtbaukosten, inkl. 1. + 2. Nachtrag | 69,1 Millionen Euro |
|   davon Baukosten | 56,3 Millionen Euro |
|   davon Honorarkosten | 12,8 Millionen Euro |
| zzgl. Großgeräte / Mobiliar | 11,5 Millionen Euro |
| Förderhöchstbetrag für Baukosten, Großgeräte und Ersteinrichtung | 65,7 Millionen Euro |
| Förderzeitraum | 2022 bis 2026 |
| Nutzungsfläche NUF 1-7 | 7.488 m² |
| Netto-Raumfläche NRF | 12.347 m² |
| Brutto-Grundfläche BGF | 15.899 m² |
| Brutto-Rauminhalt BRI | 55.303 m³ |
| Generalplaner | |
| Objektplanung Gebäude, Brandschutz | MHB Architekten + Ingenieure GmbH, Rostock |
| Nachunternehmer | |
| Tragwerksplanung, Bauphysik, Baugrube | Wetzel & von Seht Ingenieurbüro für Bauwesen, Hamburg |
| Planung Heizung, Lüftung, Sanitär, Elektro, Fernmelde, Förderanlagen, Gebäudeautomation | ARGE TGA: PLAN TEC Ingenieurgesellschaft mbH, Elmenhorst + ibm haustechnik manjah GmbH, Neubrandenburg |
| Planung Erschließung, Ingenieurbauwerke, Verkehrs- und Freianlagen | IBK MV GmbH, Stralsund |
| Planung Labore | Dr. Heinekamp Labor- und Institutsplanung GmbH, Basel |
Stand: Juni 2024
Lageplan des Forschungs-Neubaus William B. Kannel Center for Community Medicine (CM)
17489 Greifswald, Ferdinand-Sauerbruch-Straße
